top of page

BESCHREIBUNG
4,5-Zimmer-Wohnung im Erdgeschoss, einzige auf dem Geschoss und nach Südwesten ausgerichtet, bietet einen 360-Grad-Blick mit Öffnungen in jede Richtung.
Die Terrasse von 30 m2 und der große Garten von 200 m2 bieten ausreichend Platz im Grünen, ideal für Familien mit Kindern oder Menschen, die gerne einen zusätzlichen Grünraum haben möchten.
Räumlichkeiten: Eingang mit Garderobe / großer offener Wohnbereich mit Küche / Disporaum / Terrasse / Garten / drei Schlafzimmer / eines mit Bad en suite / ein Bad für die anderen zwei Schlafzimmer / ein Gästebad.
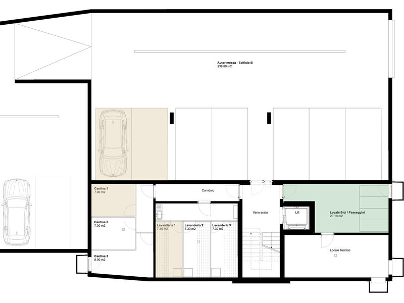
Ein Keller, eine Waschküche und zwei Parkplätze in der Garage vervollständigen das Angebot.
Den Bewohnern stehen außerdem ein Gemeinschaftsgarten, zwei Abstellräume für Kinderwagen und Fahrräder sowie zwei Außenparkplätze für Gäste zur Verfügung.
HAUPTINFORMATIONEN
- Objekt
- Baujahr
- Geschoss
- Räumlichkeiten
- Anzahl der Whg.
- Bruttogeschossfläche
- Netto-Fläche
- Terrasse
- Gartenfläche
- Gemeinschaftsgarten
- Verfügbare Parkplätze
- Keller
- Waschraum
VERFÜGBARKEIT
Verfügbar
KAUFPREIS
1'850'000.-
Parkplätze sind für 60.000 pro Stück verfügbar.
Neubau
2024
Erdgeschoss
4,5
6
149.0 m2
125.0 m2
30.0 m2
200.0 m2
100.0 m2
2
7.0 m2
7.3 m2
bottom of page







